Omschrijving

RUIMTE, LICHT EN COMFORT IN HET HART VAN NUENEN
Een heerlijk licht en verrassend ruim appartement midden in het bruisende centrum van Nuenen. Hier woon je op een van de leukste locaties van het dorp, met winkels, supermarkten, restaurants en terrasjes letterlijk om de hoek. Toch ervaar je binnen alle rust, comfort en ruimte om fijn thuis te komen.
Dit goed onderhouden appartement is ideaal voor wie nét wat meer zoekt. De woonkamer is heerlijk licht dankzij grote raampartijen en de fijne indeling zorgt voor een huiselijk en open gevoel. Met drie volwaardige slaapkamers biedt het volop mogelijkheden: voor gezinnen, thuiswerkers of logees. De badkamer is opvallend ruim en praktisch ingericht.
Ook buiten zit je goed: aan de voorzijde kun je genieten op het terras en aan de achterzijde vind je de loggia waar je heerlijk beschut zit én een levendig uitzicht hebt op de winkelstraat van Nuenen.

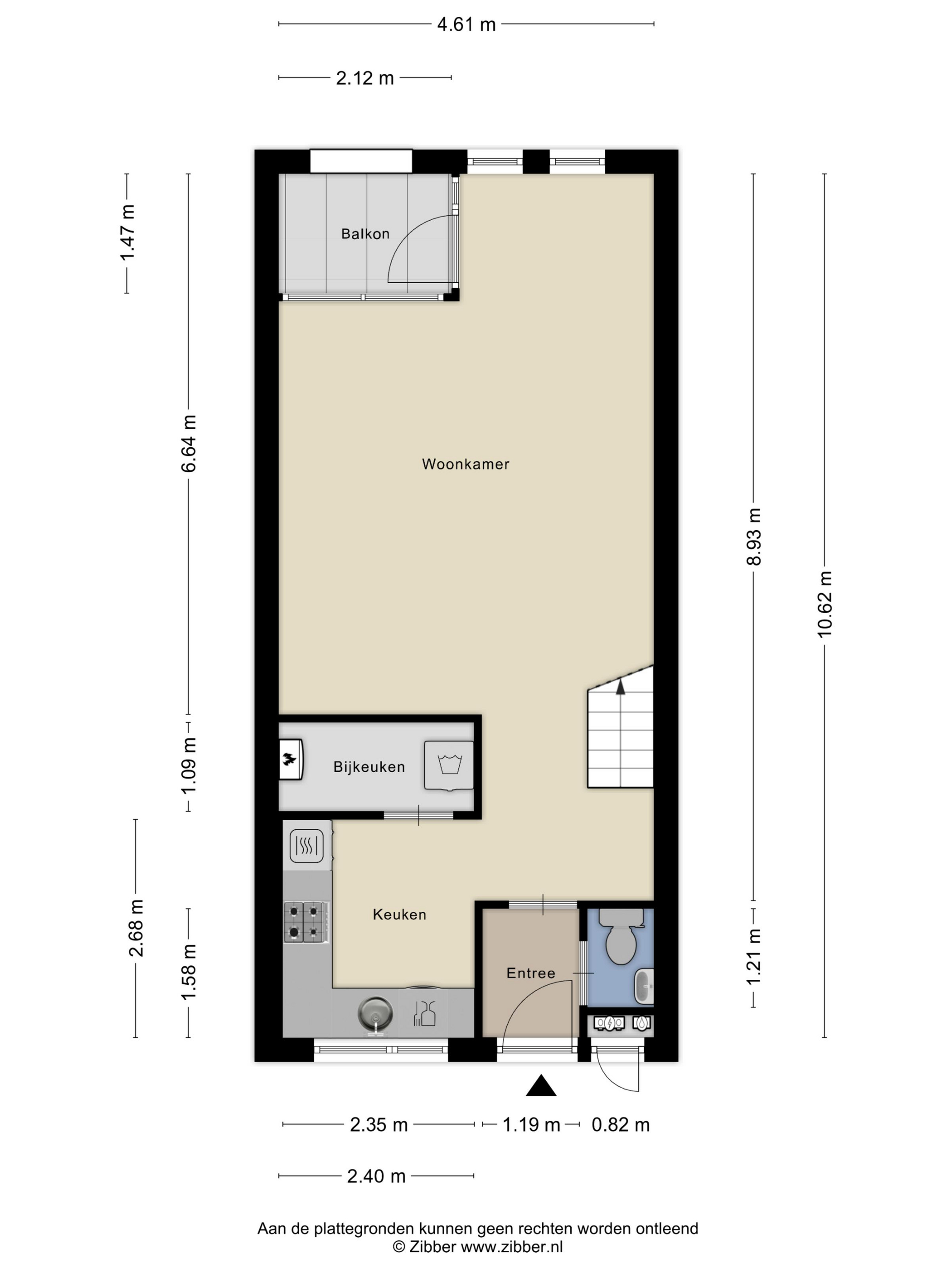
BEGANE GROND
ENTREE
De gezamenlijke entree bevindt zich op de begane grond. Hier bevinden zich de brievenbussen, het bellentableau, het trappenhuis en de toegangsdeur tot de verdieping en het souterrain. Vanuit hier neem je de trap naar de eerste verdieping, waar zich het appartement bevindt. Direct voor de entree is een buitenruimte waar je gezellig kunt zitten. Bij binnenkomst sta je in de hal, die toegang geeft tot het toilet en de woonkamer.

WOONKAMER
De woonkamer van dit appartement is ruim en gezellig. Aan de achterkant is plek voor een grote eettafel bij het raam. Door de grote ramen komt hier veel daglicht naar binnen en vanuit hier is er toegang tot de loggia. Aan de andere kant van de kamer is genoeg plek voor een grote zithoek en servieskast. Zo is de woonkamer een gezellige open ruimte.

KEUKEN
De keuken is gelegen aan de voorzijde van het appartement en heeft alles wat je nodig hebt: een koelkast, oven, 4-pits gasstel met afzuigkap en voldoende kastruimte. Vanuit de keuken kijk je uit over je terras. Aangrenzend is er een handige berging voor voorraad of huishoudelijke spullen. Hier bevindt zich ook de CV ketel en de witgoedaansluitingen.


EERSTE VERDIEPING
OVERLOOP
Via de vaste trap bereik je de boven verdieping. Op deze verdieping bevinden zich drie slaapkamers en de badkamer. Alle kamers zijn vanaf de overloop bereikbaar.

SLAAPKAMERS
De grootste slaapkamer bevindt zich aan de achterzijde van de woning. Deze kamer is licht, ruim en voorzien van openslaande deuren naar een Frans balkon waar je uitkijkt over de winkelstraat. Hier is voldoende plek voor een tweepersoonsbed en een grote kledingkast. De tweede slaapkamer ligt aan de voorzijde van het appartement en heeft eveneens een Frans balkon. Ook hier valt het licht rijkelijk naar binnen. Een perfecte kamer als tweede slaapkamer, werkkamer of logeerkamer. De derde slaapkamer ligt ook aan de voorzijde van de woning en is eveneens goed van formaat. Ideaal als kinderkamer, hobbyruimte of thuiswerkplek.

BADKAMER
De badkamer is ruim opgezet en netjes onderhouden. Er is een douche, een wastafel en een tweede toilet. Ook is hier nog genoeg ruimte over voor een badkamerkast of een wasmand.

BERGING
Bij het appartement hoort een eigen berging in de kelder van het gebouw. Perfect voor fietsen, koffers of spullen die je niet dagelijks nodig hebt.

BUITENRUIMTE
Aan de voorzijde van de woning kun je genieten op je eigen terras waar ruimte genoeg is voor een tuinbank of een tuintafel. Door de windschermen die hier geplaatst zijn zit je hier goed beschut. Aan de achterzijde grenst de loggia aan de woonkamer. Deze overdekte buitenruimte biedt privacy en comfort en is geschikt voor elk seizoen. Vanuit hier kijk je uit op de gezellige winkelstraat.

KENMERKEN
- Gelegen in het hart van Nuenen, alles op loopafstand
- Drie goed bemeten slaapkamers met veel lichtinval
- Zeer ruime badkamer met douche, wastafel en tweede toilet
- Licht appartement met grote ramen aan voor- en achterzijde
- Loggia aan de achterzijde én terras aan de voorzijde
- Mooi uitzicht over de Vincent van Goghstraat vanaf de loggia op het zuiden
- Eigen berging in de kelder

Heb je vragen, of wil je even binnen kijken??

Neem vrijblijvend contact met ons op
Deze woning delen

Kenmerken

Aanvaarding

Vraagprijs
€ 399.000,00
Status
Verkocht
Aanvaarding
In overleg

Bouw

Bouwvorm
Bestaande bouw
Bouwjaar
1986
Onderhoudswaardering binnen
Redelijk
Onderhoudswaardering buiten
Redelijk
Ligging
In centrum

Indeling

Woonoppervlakte
92 m²
Inhoud
302 m³
Kamers
5
Slaapkamers
3
Badkamers
1

Energie

Energieklasse
B
Isolatie
HR glas
Verwarming
CV-ketel

Buitenruimte

Tuintypes
Plaats

Garage

Garagesoort
Geen garage

Video's

Plattegronden

Map 1
Map 2
Map 3

Meer informatie

Wilt u meer informatie over Vincent van Goghstraat 53, NUENEN? Laat dan hier uw email adres achter zodat wij u kunnen informeren.

* We respecteren uw privacy en sturen alleen relevante informatie.