Omschrijving

Aan de Boutenslaan 4 in Eindhoven staat deze karakteristieke woning centraal gelegen nabij het Stadswandelpark park en de Genneper Parken. Wat meteen opvalt, is het vele licht in huis. Grote ramen aan de voor- en achterzijde zorgen de hele dag voor een prettige sfeer. De woning heeft een fijne indeling en biedt volop mogelijkheden. Met enkele aanpassingen zijn hier zelfs vijf slaapkamers te realiseren. In 2018 is het pannendak vernieuwd, wat zorgt voor extra zekerheid en minder onderhoud.

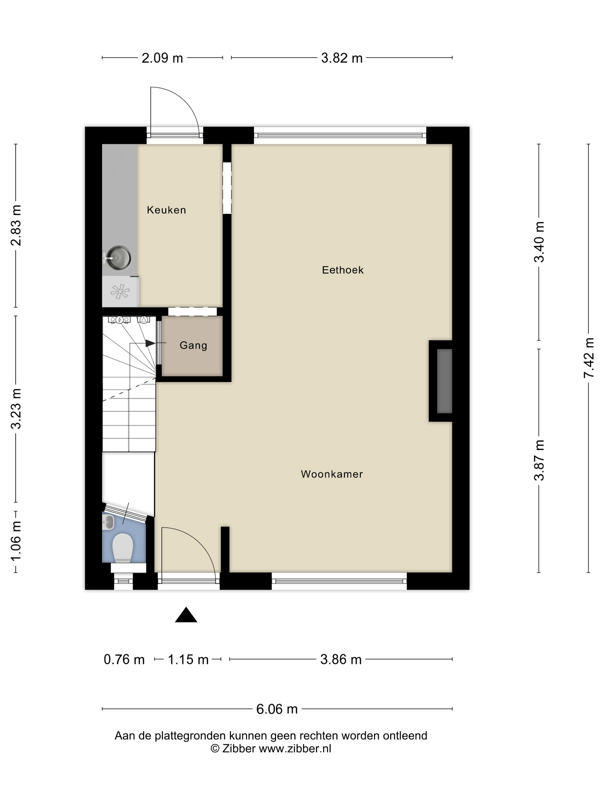
BEGANE GROND
Via de voortuin bereik je de woning. De voortuin is netjes aangelegd en geeft een fijne overgang van straat naar huis.

ENTREE
De entree geniet van optimale licht inval en staat in open verbinding met de woonkamer, maar is deels afgesloten door een glazen wand. Hierdoor blijft het contact met de woonkamer behouden, terwijl de entree toch een eigen plek heeft. Dit zorgt voor rust en een ruimtelijk gevoel tegelijk. De trap naar de eerste verdieping is netjes bekleed. Door middel van een klein trap plateau bereik je het toilet.

TOILET
Het toilet is volledig betegeld en strak afgewerkt. Er is een inbouwcloset, een fonteintje en een radiator. Een val raam zorgt voor daglicht en ventilatie. De combinatie van witte wandtegels en een donkere vloertegel geeft een frisse uitstraling.

WOONKAMER
De woonkamer is strak gestuct en aan de voorzijde voorzien van inbouwspots. Op de vloer ligt dezelfde bekleding als op de trap, wat zorgt voor eenheid. Dankzij ramen aan de voor- en achterzijde is de lichtinval erg prettig. Er is een Inverter airco geplaatst, zodat je de temperatuur zelf goed kunt regelen. Aan de voorzijde is een zonnescherm aanwezig, handig om het zonlicht te doseren.

Via een doorgang loop je door naar de keuken.

KEUKEN
De keuken is praktisch ingericht met een keukenblok met witte fronten, een spoelbak en een kleine koelkast. Er zijn bovenkastjes voor extra bergruimte. Op de vloer liggen tegels. Via de loopdeur heb je direct toegang tot de achtertuin. Deze deur is voorzien van een rolluik.

Vanuit de keuken bereik je de kelderkast met de meterkast. Deze ruimte is eenvoudig af te sluiten door het plaatsen van een deur.

EERSTE VERDIEPING
OVERLOOP
Vanaf de overloop heb je toegang tot twee slaapkamers, een inbouwkast, de badkamer en de vaste trap naar de tweede verdieping. Op deze hele verdieping, behalve in de badkamer, ligt dezelfde vloerbedekking als op de begane grond.

SLAAPKAMERS
De twee ruime slaapkamers zijn momenteel met elkaar verbonden door een glazen schuifdeur. Beide kamers hebben ook een eigen toegangsdeur. Net als beneden is de lichtinval hier erg fijn. Beide kamers bieden voldoende ruimte voor een tweepersoonsbed, een kast en een bureau. Deze kamers zijn door het plaatsen van 2 muren en een extra deur op te splitsen in 3 aparte slaapkamers.

BADKAMER
De badkamer is deels betegeld en voorzien van een wandcloset en een fonteintje. Een karakteristiek raam zorgt voor daglicht en natuurlijke ventilatie. Er is een goot geplaatst, waardoor het realiseren van een douche eenvoudig is. Op dit moment is er nog geen douche aanwezig. De radiator zorgt voor extra comfort.

TWEEDE VERDIEPING
VOORZOLDER
Vanaf de voorzolder heb je toegang tot twee slaapkamers, een berging en de technische ruimte.

TECHNISCHE RUIMTE
Hier vind je de Nefit cv-ketel uit 2025. Er is daarnaast ruimte om spullen op te bergen.

SLAAPKAMERS ZOLDER
De twee slaapkamers op zolder zijn van goed formaat en strak afgewerkt. Beide kamers hebben een dakkapel, wat zorgt voor extra licht en ruimte. Op de vloer ligt een laminaatvloer. Er zijn inbouwkasten en nissen aanwezig, ideaal voor bergruimte. Beide kamers beschikken ook over aansluitingen voor een wastafel.

BERGING ZOLDER
In de berging is veel opbergruimte aanwezig onder de dakschuinte en langs de wanden.

BUITENRUIMTE
VOORTUIN
De voortuin is leuk aangelegd met een stenen terras en een groene haag. Je hebt zicht op de straat en merkt hier goed hoe centraal je in Eindhoven woont.

ACHTERTUIN
De achtertuin is verzorgd en groen ingericht met volwassen beplanting en grote hagen. Er is een terras en een stenen berging voor fietsen en tuingereedschap. De tuin beschikt over een gedeelde achterom.

OMGEVING
De woning ligt op een centrale locatie in Eindhoven. Uitvalswegen zijn snel bereikbaar en het centrum ligt op korte afstand. In de directe omgeving vind je parken en groenvoorzieningen, ideaal voor een wandeling of om even tot rust te komen.

BELANGRIJKSTE KENMERKEN
• Zeer lichte woning
• Centrale ligging in Eindhoven
• Karakteristieke uitstraling
• Mogelijkheid tot 5 slaapkamers
• Vernieuwd pannendak in 2018
• Cv-ketel uit 2025
• Voor- en achtertuin met achterom

Heb je vragen, of wil je even binnen kijken??

Neem vrijblijvend contact met ons op
Deze woning delen

Kenmerken

Aanvaarding

Vraagprijs
€ 495.000,00
Status
Beschikbaar
Aanvaarding
In overleg

Bouw

Woonhuistype
Tussenwoning
Bouwvorm
Bestaande bouw
Bouwjaar
1955
Onderhoudswaardering binnen
Redelijk tot goed
Onderhoudswaardering buiten
Redelijk tot goed
Bijzonderheden
Monument
Ligging
Aan drukke weg, In centrum

Indeling

Woonoppervlakte
122 m²
Perceel oppervlakte
160 m²
Inhoud
432 m³
Kamers
5
Slaapkamers
4
Badkamers
1

Energie

Energieklasse
C
Isolatie
Muurisolatie, Gedeeltelijk dubbel glas
Verwarming
CV-ketel

Buitenruimte

Tuintypes
Achtertuin, Voortuin

Garage

Garagesoort
Geen garage

Plattegronden

Map 1
Map 2
Map 3
Map 4
Map 5
Map 6

Meer informatie

Wilt u meer informatie over Boutenslaan 4, EINDHOVEN? Laat dan hier uw email adres achter zodat wij u kunnen informeren.

* We respecteren uw privacy en sturen alleen relevante informatie.